賃貸物件

新着

金沢市小立野3丁目/蔵テナント

  • 外観

  • 外観

  • 共有スペース

  • 共有スペース

  • 共有スペース

  • 共有スペース

  • 共有スペース

  • 共有スペース

  • 共有スペース(トイレ)

  • 共有スペース(トイレ)

  • 共有スペース

  • 蔵1

  • 蔵1

  • 蔵1

  • 蔵1

  • 蔵1

  • 蔵1

  • 蔵1

  • 蔵2

  • 蔵2

  • 蔵2

  • 蔵2

  • 蔵2

  • 蔵2

  • 蔵2

  • 2階

  • 2階

  • 2階

  • 2階

  • 2階

  • 2階

  • 外観

  • 外観

建築の美しさから、市民だけでなく観光客の来訪も多い「石川県立図書館」。
そこから徒歩5分ほど、1本裏手の旧道沿いに、今回ご紹介する物件があります。

古い町家がぽつりぽつりと残るその通りで、ひときわ目を引くのが、2棟の土蔵が屋根付きの空間でつながれたこの建物です。
長い月日を重ねてきた土蔵はできるだけそのままに、大家さんが手を入れたのは蔵と蔵のあいだのスペース。

小さなシンクとトイレを設置し、吹き抜けをつくり、空間を整えました。

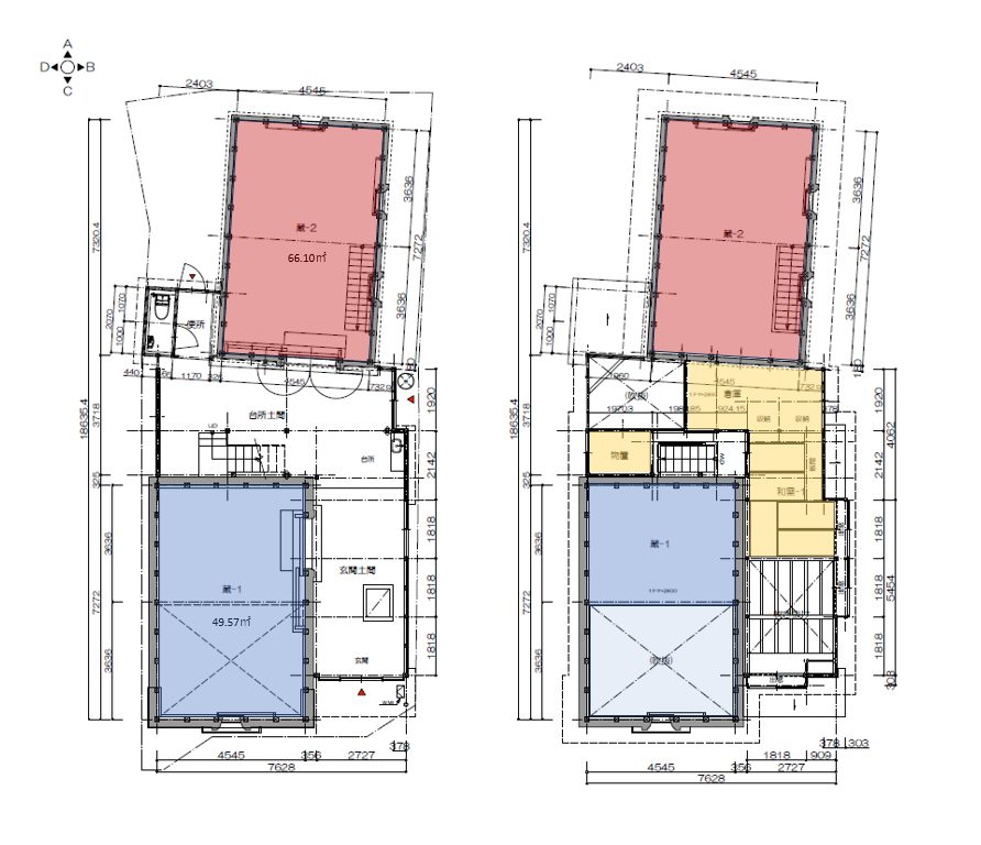
2棟の土蔵と2階は、それぞれ事務所や店舗としてテナント募集し、あいだの空間は3テナントの共有スペースとして利用できます。

各蔵の内部には、空調や水回りなどの設備はありませんので、必要に応じて、借主様のご負担で工事していただければと思います。

観光の中心地から少し離れた、落ち着いた一角。
味わいのある佇まいに手を加えながら、自分らしいお店を育ててみたい方におすすめしたい物件です。

お問い合わせの際は、ご予定の用途等も合わせてお知らせください。

物件番号/rent-00095

物件種別 テナント
所在地 金沢市小立野3丁目26−17
賃料 蔵1・税込60,000円、蔵2・税込70,000円、2階・25,000円
共益費・管理費 8,000円
敷金 賃料の3か月分
礼金 賃料の1か月分
専有面積 蔵1・49.57㎡、蔵2・66.10㎡、2階・約22㎡
構造 木造・土蔵造瓦葺2階建て
築年 不詳
間取り 間取図参照
交通 北鉄バス 小立野3丁目バス停 徒歩2分
取引形態 媒介
備考 近隣駐車場あり(別途契約)
間取り図

クリックで拡大

物件資料をダウンロード

新規ウィンドウでPDFが開きます。

情報更新日/2025年12月19日

内見お申し込み・お問い合わせ

この物件の内見申し込み・お問い合わせは、下記フォームよりご連絡ください。
返答には、2〜3日ほどお時間をいただく場合がございます。あらかじめご了承下さい。
」は入力必須項目です。

物件名
ご用件
お名前
フリガナ
メールアドレス
メールアドレス(確認用)
電話番号 - -
メッセージ

プライバシーポリシー

ことのは不動産株式会社(以下、「弊社」と表現します。)は、弊社が取得した個人情報の取り扱いに関し、個人情報の保護に関する法律やその他ガイドライン等を遵守するよう、以下のプライバシーポリシーを定めます。尚、本プライバシーポリシーは、弊社が運営するウェブサイト(以下、「当サイト」と表現します。)においてのみ適用されます。

第1条 個人情報の定義

個人情報とは、個人情報保護法に定められた個人情報を指します。具体的には、生存する個人に関する情報であって、当該情報に含まれる氏名、生年月日、連絡先その他の記述等により特定の個人を識別できる情報、及び他の情報と照合することによって特定の個人を識別することができることとなるものを指します。

第2条 個人情報の収集方法

当サイトでは、お問い合わせいただく際に以下の個人情報をお尋ねすることがあります。個人情報を収集するにあたっては、利用目的を明記の上、適法かつ公正な手段によります。

  • お名前、フリガナ
  • ご住所
  • お電話番号
  • メールアドレス
  • 上記を組み合わせることで特定の個人が識別できる情報

第3条 個人情報の利用目的

当サイトがお客様からお預かりした個人情報を利用する目的は以下の通りです。

  • お問い合わせへの返信
  • ご要望に応じたサービスの提供

第4条 個人情報の利用目的の変更

当サイトは、利用目的が変更前と関連性を有する場合のみ、個人情報の利用目的を変更することがあります。変更があった際には、目的や変更内容についてお客様様へ通知、ウェブサイトのご案内で公表いたします。

第5条 個人情報の安全管理

お客様よりお預かりした個人情報の安全管理はサービス提供会社によって合理的、組織的、物理的、人的、技術的施策を講じるとともに、当サイトでは関連法令に準じた適切な取扱いを行うことで個人データへの不正な侵入、個人情報の紛失、改ざん、漏えい等の危険防止に努めます。

第6条 個人情報の第三者への提供の禁止

当サイトでは、お客様よりお預かりした個人情報を適切に管理し、次のいずれかに該当する場合を除き、個人情報を第三者に開示いたしません。

  • ご本人の同意がある場合
  • 人の生命、身体または財産の保護のために必要であり、本人の同意を得るのが困難な場合
  • 公衆衛生の向上または児童の健全な育成の推進のために特に必要があり、本人の同意を得るのが困難な場合
  • お客様が希望されるサービスを行うために、当サイトが業務を委託する業者に対して開示する場合
  • 合併その他の事由により事業の継承が行われる場合

第7条 個人情報の開示

当サイトは、お客様から個人情報の開示を求められたときは、ご本人であることを確認させていただいた上、速やかに対応させていただきます。ただし、開示することにより次のいずれかに該当する場合は、その限りではありません。また、開示しない決定をした場合には、その旨を遅滞なく通知します。

  • 身体,財産その他の権利利益を害するおそれがある場合
  • 当社の業務の適正な実施に著しい支障を及ぼすおそれがある場合
  • その他法令に違反することとなる場合

前項の定めにかかわらず、履歴情報および特性情報などの個人情報以外の情報については、原則として開示いたしません。

第8条 個人情報の訂正、削除

お客様は、当サイトのお預かりする自己の個人情報が誤った情報である場合には、当社に対して個人情報の訂正、追加または削除を請求することができます。下記の第12条、お問合せ先よりお知らせ下さい。当サイトは、お客様様から前項の請求を受けてその請求に応じる必要があると判断した場合には、当該個人情報の訂正等を行います。また、訂正等を行った場合、もしくは訂正等を行わない旨の決定をした場合は、これをお客様に通知いたします。

第9条 cookie(クッキー)の使用について

当サイトは、お客様によりよいサービスを提供するため、cookie (クッキー)を使用することがありますが、これにより個人を特定できる情報の収集を行えるものではなく、お客様のプライバシーを侵害することはございません。また、cookie (クッキー)の受け入れを希望されない場合は、ブラウザの設定で変更することができます。
※cookie (クッキー)とは、サーバーコンピュータからお客様のブラウザに送信され、お客様が使用しているコンピュータのハードディスクに蓄積される情報です。

第10条 SSLの使用について

個人情報の入力時には、セキュリティ確保のため、これらの情報が傍受、妨害または改ざんされることを防ぐ目的でSSL(Secure Sockets Layer)技術を使用しております。
※SSLは情報を暗号化することで、盗聴防止やデータの改ざん防止送受信する機能のことです。SSLを利用する事でより安全に情報を送信する事が可能となります。

第11条 法令や規範の遵守と見直し

当サイトは、保有する個人情報に関して、日本の法令その他規範を遵守するとともに、本ポリシーの内容を適宜見直し、その改善に努めます。また、変更を行う際は、当ページへの変更をもって公表とさせていただきます。

第12条 お問い合わせ

本ポリシーに関するお問い合わせは、ご質問等がございましたらお問い合わせフォームからご連絡下さい。