売買物件

新 着

金沢市東蚊爪町/売家

  • 外観

  • 外観

  • 玄関

  • 玄関

  • 玄関

  • 玄関

  • 玄関

  • 玄関

  • 玄関

  • 和室12.5帖

  • 和室12.5帖

  • 和室12.5帖

  • 天井

  • 和室8帖(仏間)

  • 和室10帖

  • 縁側

  • 和室12.5 帖

  • 和室12.5 帖

  • キッチン

  • 風呂

  • 洗面

  • 洗面

  • トイレ

  • 物置

  • 納屋

  • 納屋

  • 納屋・小屋裏

  • 納屋

  • 納屋

  • 納屋

  • 納屋

  • 納屋

  • 納屋

  • 納屋

  • 外観

  • 外観

  • 前面道路

  • 前面道路

  • 側道

  • 小屋(附属建物)

  • 小屋(附属建物)

  • 外観

金沢駅から車で北へ約15分。

あるいは、北鉄浅野川線というローカル線に揺られて9駅。

辿り着くのは、田園と住宅地が静かに混ざり合う、東蚊爪町。

喧騒から少し離れた、穏やかで懐かしい風景が広がる場所です。

ご紹介するのは、昔ながらの田の字型間取りを残した趣のある古民家です。

奥に長いまちなかの金澤町家とはまた異なり、220坪を超える広い敷地に、母屋と納屋、庭が広がる農家住宅。

築年数は不詳ですが、明治後期にはすでに建っていたという記録が残っています。

母屋に入って見上げると、時代を感じさせる立派な太い梁が堂々と空間を支え、
もう一つ奥へと進むと、拭き漆が施された天井が、しっとりとした艶とともに住まいの格を伝えます。

敷地の約半分を占める広い庭は、今はやや荒れてはいるものの、
整備すれば駐車場にも庭にも、思いのままに形を変えられるポテンシャルがあります。

農機具を収めていた納屋も、十分な広さを備えており、
ワークスペースやガレージ、さらには離れや店舗への転用も可能です。

周辺には、古民家をリノベーションしたパン屋さんもあり、
この家もまた、暮らしの場としてだけでなく、商いの拠点にもなり得る可能性を秘めています。

物件番号/sale-00073

物件種別 戸建
所在地 金沢市東蚊爪町チ29
価格 1490万円
土地面積 754.96㎡(228.37坪)
地目 宅地
都市計画 市街化調整区域
用途地域
建ぺい率・容積率 60%/200%
校区 大浦小学校/浅野川中学校
建物面積 271.79㎡+附属建物19.83㎡
構造 木造瓦葺平屋建
築年 不詳(明治期)
間取り 7K
交通 北陸鉄道浅野川線 蚊爪駅 徒歩6分
取引形態 媒介
備考
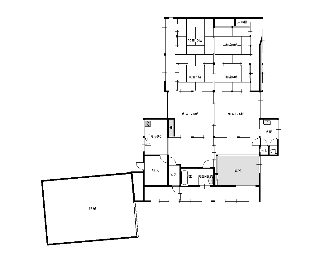
間取り図

クリックで拡大

物件資料をダウンロード

新規ウィンドウでPDFが開きます

情報更新日/2025年11月10日

内見お申し込み・お問い合わせ

この物件の内見申し込み・お問い合わせは、下記フォームよりご連絡ください。
返答には、2〜3日ほどお時間をいただく場合がございます。あらかじめご了承下さい。
」は入力必須項目です。

物件名
ご用件
お名前
フリガナ
メールアドレス
メールアドレス(確認用)
電話番号 - -
メッセージ

プライバシーポリシー

ことのは不動産株式会社(以下、「弊社」と表現します。)は、弊社が取得した個人情報の取り扱いに関し、個人情報の保護に関する法律やその他ガイドライン等を遵守するよう、以下のプライバシーポリシーを定めます。尚、本プライバシーポリシーは、弊社が運営するウェブサイト(以下、「当サイト」と表現します。)においてのみ適用されます。

第1条 個人情報の定義

個人情報とは、個人情報保護法に定められた個人情報を指します。具体的には、生存する個人に関する情報であって、当該情報に含まれる氏名、生年月日、連絡先その他の記述等により特定の個人を識別できる情報、及び他の情報と照合することによって特定の個人を識別することができることとなるものを指します。

第2条 個人情報の収集方法

当サイトでは、お問い合わせいただく際に以下の個人情報をお尋ねすることがあります。個人情報を収集するにあたっては、利用目的を明記の上、適法かつ公正な手段によります。

  • お名前、フリガナ
  • ご住所
  • お電話番号
  • メールアドレス
  • 上記を組み合わせることで特定の個人が識別できる情報

第3条 個人情報の利用目的

当サイトがお客様からお預かりした個人情報を利用する目的は以下の通りです。

  • お問い合わせへの返信
  • ご要望に応じたサービスの提供

第4条 個人情報の利用目的の変更

当サイトは、利用目的が変更前と関連性を有する場合のみ、個人情報の利用目的を変更することがあります。変更があった際には、目的や変更内容についてお客様様へ通知、ウェブサイトのご案内で公表いたします。

第5条 個人情報の安全管理

お客様よりお預かりした個人情報の安全管理はサービス提供会社によって合理的、組織的、物理的、人的、技術的施策を講じるとともに、当サイトでは関連法令に準じた適切な取扱いを行うことで個人データへの不正な侵入、個人情報の紛失、改ざん、漏えい等の危険防止に努めます。

第6条 個人情報の第三者への提供の禁止

当サイトでは、お客様よりお預かりした個人情報を適切に管理し、次のいずれかに該当する場合を除き、個人情報を第三者に開示いたしません。

  • ご本人の同意がある場合
  • 人の生命、身体または財産の保護のために必要であり、本人の同意を得るのが困難な場合
  • 公衆衛生の向上または児童の健全な育成の推進のために特に必要があり、本人の同意を得るのが困難な場合
  • お客様が希望されるサービスを行うために、当サイトが業務を委託する業者に対して開示する場合
  • 合併その他の事由により事業の継承が行われる場合

第7条 個人情報の開示

当サイトは、お客様から個人情報の開示を求められたときは、ご本人であることを確認させていただいた上、速やかに対応させていただきます。ただし、開示することにより次のいずれかに該当する場合は、その限りではありません。また、開示しない決定をした場合には、その旨を遅滞なく通知します。

  • 身体,財産その他の権利利益を害するおそれがある場合
  • 当社の業務の適正な実施に著しい支障を及ぼすおそれがある場合
  • その他法令に違反することとなる場合

前項の定めにかかわらず、履歴情報および特性情報などの個人情報以外の情報については、原則として開示いたしません。

第8条 個人情報の訂正、削除

お客様は、当サイトのお預かりする自己の個人情報が誤った情報である場合には、当社に対して個人情報の訂正、追加または削除を請求することができます。下記の第12条、お問合せ先よりお知らせ下さい。当サイトは、お客様様から前項の請求を受けてその請求に応じる必要があると判断した場合には、当該個人情報の訂正等を行います。また、訂正等を行った場合、もしくは訂正等を行わない旨の決定をした場合は、これをお客様に通知いたします。

第9条 cookie(クッキー)の使用について

当サイトは、お客様によりよいサービスを提供するため、cookie (クッキー)を使用することがありますが、これにより個人を特定できる情報の収集を行えるものではなく、お客様のプライバシーを侵害することはございません。また、cookie (クッキー)の受け入れを希望されない場合は、ブラウザの設定で変更することができます。
※cookie (クッキー)とは、サーバーコンピュータからお客様のブラウザに送信され、お客様が使用しているコンピュータのハードディスクに蓄積される情報です。

第10条 SSLの使用について

個人情報の入力時には、セキュリティ確保のため、これらの情報が傍受、妨害または改ざんされることを防ぐ目的でSSL(Secure Sockets Layer)技術を使用しております。
※SSLは情報を暗号化することで、盗聴防止やデータの改ざん防止送受信する機能のことです。SSLを利用する事でより安全に情報を送信する事が可能となります。

第11条 法令や規範の遵守と見直し

当サイトは、保有する個人情報に関して、日本の法令その他規範を遵守するとともに、本ポリシーの内容を適宜見直し、その改善に努めます。また、変更を行う際は、当ページへの変更をもって公表とさせていただきます。

第12条 お問い合わせ

本ポリシーに関するお問い合わせは、ご質問等がございましたらお問い合わせフォームからご連絡下さい。